建売

【大村】木場1丁目2号地 Update

大村市木場1丁目
2026年春 大村市木場1丁目に"平屋モデルハウス"オープン予定🏠※ご成約済

2026年春 平屋モデルハウスオープン予定 ※ご成約済

平屋 約26坪

※パースはイメージです。実際の製品とは色や風合いが異なる場合があります。

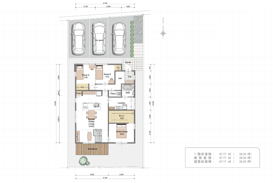
平面図

周辺環境

◆日常生活に必要な施設が徒歩圏内または車で数分の場所に揃っています

◆静かな住環境をと快適な暮らしを送るための利便性が◎

◆木場スマートIC車約9分で高速道路へのアクセスも良好

◆学校区/旭が丘小学校・大村中学校

ダイレックス木場店 車約2分
旭が丘小学校 徒歩約5分
大村中学校 徒歩約13分
木場スマートIC 車約9分
大村木場簡易郵便局 車約2分
セブンイレブン須田ノ木店

map

物件概要

名称
木場1丁目2号地モデルハウス
所在地
大村市木場1丁目
物件所在地
大村市木場1丁目847番19
交通利便性【最寄り公共交通機関・時間】
県営向木場入口 バス停まで 歩4分
JR大村線 大村 歩22分
木場スマートIC 車約9分
物件種別
分譲建売
地目
宅地
現況
着工中
用途地域
第一種住居地域
建ぺい率
50%
容積率
80%
道路幅員
-
設備等
電気/九州電力 設備/大村市上下水道 ガス/都市ガス
総戸数
1棟
今回販売戸数
1棟
土地面積
220.06㎡(66.56坪)
建物面積
87.77㎡(26.55坪)
販売価格
ご成約済
建築確認番号
R07長住セ第0147号
建物の建築年月
2026年春予定
引渡可能年月
2026年3月予定
取引形態
売主 
情報更新日
2025年11月23日
次回情報更新予定日
2025年12月23日
建物の主たる部分の構造
木造
都市計画
都市計画区域内
地区計画
-
私道負担
-
負担金
-
備考
-
取引条件の有効期限
-
販売事業所の情報
株式会社 谷川建設 諫早営業所
当社名称または商号
〒854-0066 諫早市久山町1793番地
宅地建物取引免許/国土交通大臣(12)第002861号
建設業者許可番号/国土交通大臣(特4)大8964号

お問い合わせ先

〒854-0066 諫早市久山町1793
フリーダイヤル 0120-41-3551
TEL 0957-26-4212 / FAX 0957-26-4497