建売
【佐世保】グランアヴェニールひうみ18-6号地
グランアヴェニールひうみ
グランアヴェニールひうみ18-6号地
暮らしやすく人気の佐世保市ひうみ町で新たな新生活を!
大塔インター近く、周辺に買い物施設充実のひうみ町に誕生する「価格も広さもちょうどいい家」
先行販売スタートです!
イメージパース
2階建 3LDK+2WIC+パントリー+P3台
あなたの夢のマイホームはどんなお家ですか?
・ゆったりくつろぐリビング
・家族と顔を合わせて「いってらっしゃい」「ただいま」を伝えたい
・家事しやすい回遊動線
・嬉しい駐車場3台分
・豊富な収納
・広いお庭で友人を呼んでBBQやお子様のプール遊び
・可愛いよりシックな感じが好き
・価格もアフターサービスもどちらも大事…!
グランアヴェニールひうみ18-6号地建売ならこれらが叶います!
イメージパース
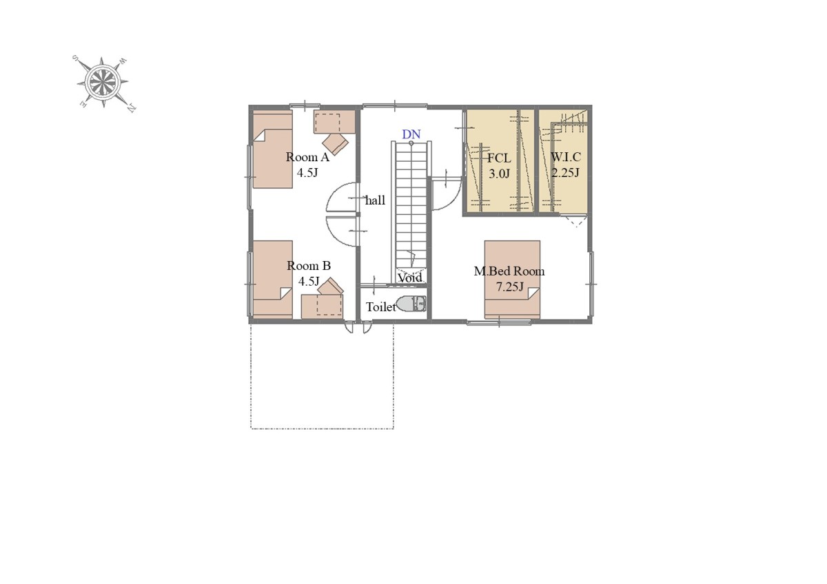
間取り
支払例
月々のお支払いのみの場合
78,784円
ボーナス併用の場合
月々60,681円、ボーナス108,766円
返済期間:50年
借入金額:3,895万円
変動金利:0.75%(JAながさき西海)
※上記支払例は2025年11月7日時点の金利を参考にしております。
※別途諸費用が必要になります。
周辺環境
□団地入口にララプレイスひうみがあり、lalaひうみ、ダイソー、マツモトキヨシ、西松屋などお買い物に便利性がいい立地
□大塔インターまで車で5分
福岡、長崎、佐世保市街地までのアクセス良好
ご来場はNBCハウジングさせぼへ
物件概要
名称
グランアヴェニールひうみ18-6号地
所在地
グランアヴェニールひうみ
物件所在地
佐世保市ひうみ町304-202
交通利便性【最寄り公共交通機関・時間】
西肥バス
卸団地南口バス停 徒歩12分
バイパス中央バス停 徒歩22分
卸団地南口バス停 徒歩12分
バイパス中央バス停 徒歩22分
物件種別
分譲建売
地目
宅地
用途地域
-
建ぺい率
60%
容積率
100%
道路幅員
12m
設備等
佐世保市上下水道、九州電力、都市ガス(西部ガス)、ケーブルテレビ(テレビ佐世保)
総戸数
583区画
今回販売戸数
1戸
土地面積
203.88㎡(61.67坪)
建物面積
99.90㎡(30.21坪)
販売価格
3,895万円
土地、建物、エアコン、照明、家具、カーテン、、外構、消費税込み
土地、建物、エアコン、照明、家具、カーテン、、外構、消費税込み
建物の建築年月
2026年2月予定
引渡可能年月
2026年3月
取引形態
売主
情報更新日
2025年10月27日
次回情報更新予定日
2025年12月29日
建物の主たる部分の構造
木造
都市計画
市街化調整区域
地区計画
佐世保都市計画地区計画
グランアヴェニールひうみ地区計画
グランアヴェニールひうみ地区計画
私道負担
なし
負担金
下水道受益者負担金:@155円/㎡、集会所建設費及び防犯灯ゴミステーション維持管理費用:10万円※区画土地決済時に一括納入
備考
-
取引条件の有効期限
2026年月31日
販売事業所の情報
㈱谷川建設 佐世保支店
当社名称または商号
〒857-0832 長崎県佐世保市藤原町2-7
国土交通大臣許可(特4)第8964号
国土交通大臣(12)第002861号
国土交通大臣許可(特4)第8964号
国土交通大臣(12)第002861号
資料請求あり
1
お問い合わせ先
〒857-0832 佐世保市藤原町2-7
フリーダイヤル 0120-69-7696
TEL 0956-31-3551 / FAX 0956-34-3558